MOOBI Expertos Inmobiliarios

  • 3333693878
  • moobi.easybroker.com

Casa en Venta en Cholul, Mérida

Cholul, Mérida

$3,495,000 For Sale

  • 3 Bedrooms
  • 3 Bathrooms
  • 1 Half Bathrooms
  • 2 Parking spaces
  • 169 m² total space
  • 263.29 m² Lot Size
  • 26 m Lot Length
  • 10 m Lot Width
  • 2 Floors
  • Under Construction Age
  • $1,800 Expenses
  • EB-PE7403 ID
Description

Privada residencial en Cholul: armonía, seguridad y excelente ubicación.

Esta privada residencial ofrece un entorno tranquilo y apacible, ideal para disfrutar de una vida familiar en equilibrio. Ubicada en Cholul, una zona conocida por su atmósfera serena y su cercanía con diversos servicios, se encuentra estratégicamente a pocos minutos de la carretera Mérida–Chicxulub Puerto, lo que permite un acceso ágil a las playas de Yucatán.

Las casas cuentan con construcciones que van de los 164 m² a los 177 m², con precios desde $3,485,000 hasta $3,765,000. El desarrollo garantiza seguridad 24/7, barda perimetral y una caseta de vigilancia con acceso controlado.

Entre sus amenidades se incluyen: roof top, áreas verdes, parque con juegos infantiles, cancha de pádel, casa club techada, alberca, área grill, espacios de lectura al aire libre y pet park.

AMENIDADES: roof top, áreas verdes, parque con juegos infantiles, cancha de pádel, casa club techada, alberca, área grill, áreas de lectura libre, pet park.

Entrega Inmediata
Modelo 169

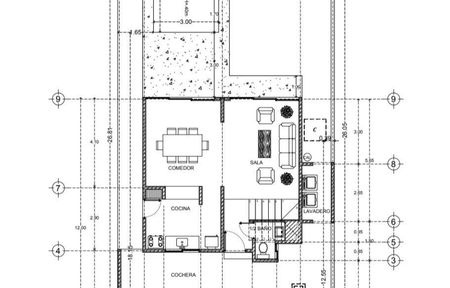
Descripción de la Casa.

PLANTA BAJA:
Garaje Techado Para 2 Autos
Sala
Comedor
Cocina Integral con Barra
Medio Baño
Área de Lavado
Terraza
Alberca.

PLANTA ALTA:
Habitación Principal con Baño, Espacio Para Closet Vestidor y Terraza
Habitación con Baño, Espacio Para Closet y Terraza
Habitación con Baño y Espacio Para Closet.

SE ENTREGA CON: 10 Paneles Solares de 550w, Carpintería en Cocina, Cancel en Baños, Calentador, Parrilla, Horno, Campana.

REQUISITOS:
Apartado: $10,000
Enganche: 20%
Crédito Bancario y Recurso Propio.

El contrato se deberá firmar a los 7 días posteriores al apartado.

Precio Vigente al 11 de Septiembre 2025
Disponibilidad y precio sujeto a cambio sin previo aviso. Favor de consultar precio actual con su asesor.
El precio de la publicación no incluye gastos notariales, impuestos, gastos de solicitud de créditos, avalúos, cuotas de mantenimiento ni gasto de administración que se genere.
Las imágenes ilustrativas son una guía gráfica parecida al producto final y pueden tener ajustes y modificaciones sin previo aviso.

Amenities
  • Covered parking
  • Street parking
  • Garage
  • Garden
  • BBQ grill
  • Terrace
  • Accessibility for elderly
  • Handicap accessible
  • Closed-Circuit Security System
  • Kitchen
  • Fitted Kitchen
  • Laundry Room
  • Double story
  • Private housing development
  • Pets allowed
  • Smoking allowed
  • 24 Hour Security
  • Pool
  • Playground
  • Padel courts
  • Tennis court

MOOBI Expertos Inmobiliarios

  • 3333693878
  • moobi.easybroker.com

MOOBI Expertos Inmobiliarios

  • 3333693878
  • moobi.easybroker.com